Skip to main content
Onder bod

Begoniastraat 42 8922 EH Leeuwarden

€ 250.000,- k.k.
  • 112 m2  woonopp.
  • 1 badkamer
  • Bouwjaar 1965
  • 6 kamers
  • Tuin op Zuid

Omschrijving

Starters opgelet: ruimte, licht en mogelijkheden op een fijne plek!

Ben jij op zoek naar je eerste eigen huis, waar je niet meteen hoeft te verbouwen maar wél nog jouw eigen woonwensen kunt realiseren? Dan is deze verrassend ruime tussenwoning aan de Begoniastraat 42 absoluut het bekijken waard. Met maar liefst 112 m² woonoppervlak, vier slaapkamers, een zonnige tuin op het zuiden en recente verbeteringen zoals een nieuwe kunststof voor- en achterdeur én een moderne schuifpui, biedt deze woning een ideale mix van comfort en toekomstkansen.

De woning beschikt over een praktische en ruime indeling die perfect aansluit bij starters die net wat meer ruimte zoeken, bijvoorbeeld voor thuiswerken, hobby’s of een (toekomstig) gezin. Dankzij de kunststof buitendeuren en schuifpui is er al een goede stap gezet richting onderhoudsarm wonen.
Op isolatiegebied liggen er nog mooie kansen: op het glas na is er voldoende ruimte om de woning verder te verduurzamen. Hiervoor zijn diverse subsidies beschikbaar, wat het extra interessant maakt om hier stap voor stap jouw duurzame thuis van te maken. Verwarming vindt plaats via radiatoren die zijn aangesloten op een ATAG HR-combiketel (medio 2015, huurtoestel).
De kleine slaapkamer op de eerste verdieping biedt bovendien een interessante mogelijkheid: deze ruimte kan relatief eenvoudig worden getransformeerd tot een grotere of tweede badkamer.

Indeling van de woning
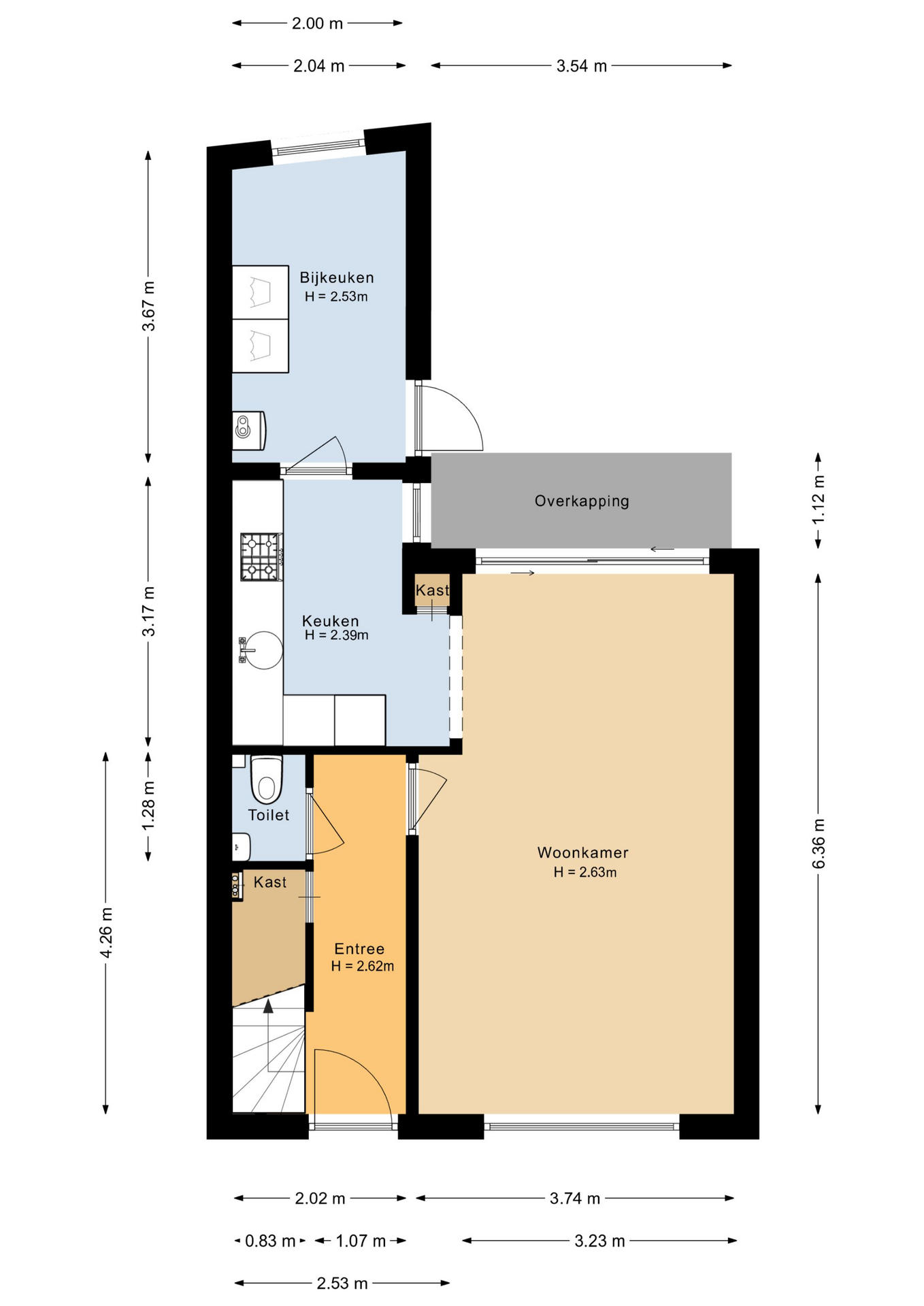
Begane grond:
Hal/entree met opgang naar de eerste verdieping en een trapkast waarin zich ook de meterkast bevindt. Toiletruimte met staand toilet en fonteintje. De lichte doorzonwoonkamer is een heerlijke leefruimte en staat dankzij de grote, moderne schuifpui in direct contact met de zonnige achtertuin op het zuiden. De keuken is opgesteld in een hoek en voorzien van diverse inbouwapparatuur. Aansluitend vind je de praktische bijkeuken, waar ook de cv-installatie is geplaatst.

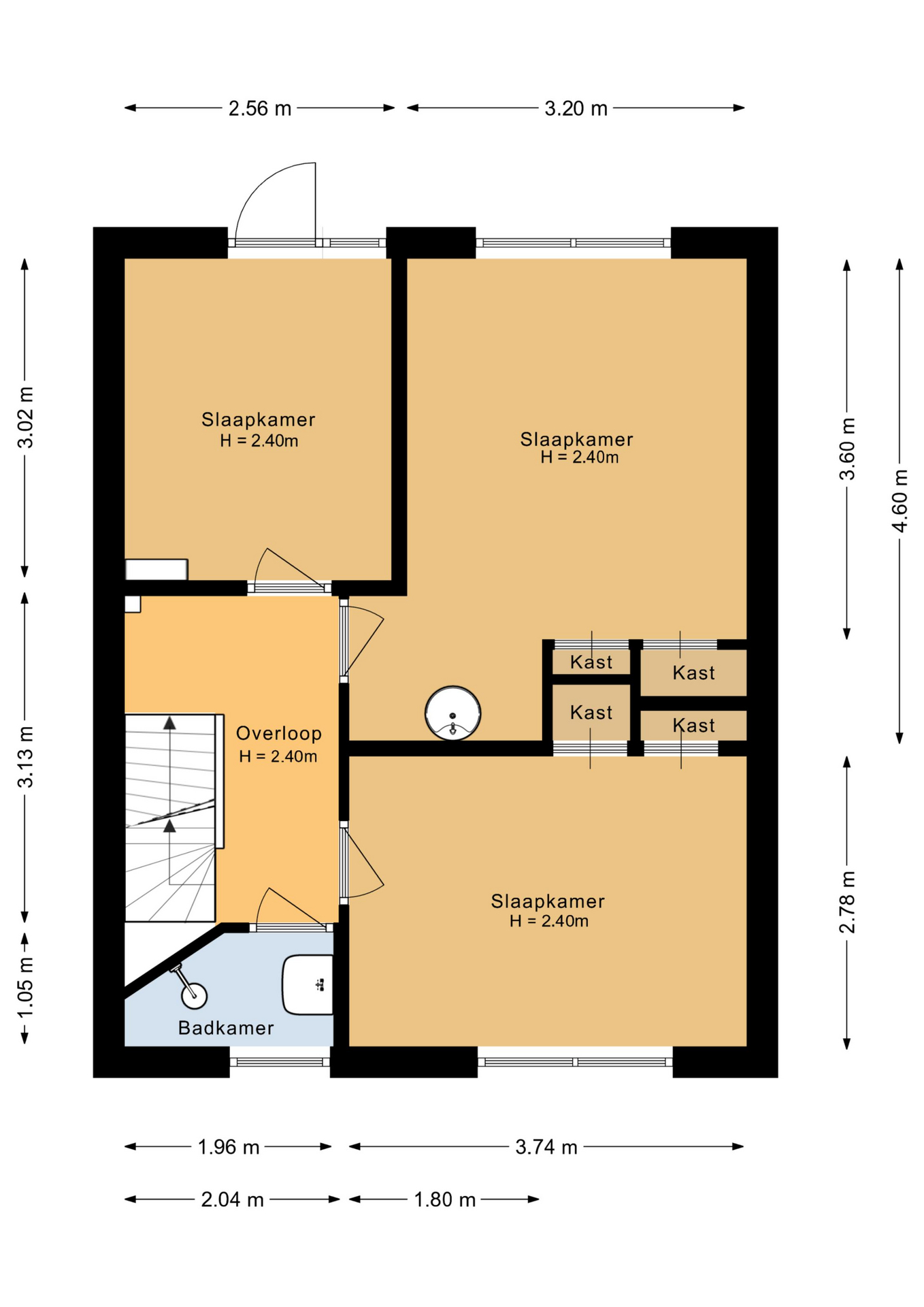
Eerste verdieping
Overloop met vaste trap naar de tweede verdieping. Compacte badkamer met douche en wastafel. Kleine slaapkamer (I) met toegang tot het platte dak – ideaal om te transformeren tot badkamer. Slaapkamer (II) met vaste kasten en wastafel. Slaapkamer (III) eveneens voorzien van twee vaste kasten.

Tweede verdieping
Overloop met berging. Ruime slaapkamer (IV) met een grote kunststof dakkapel, kunststof kozijnen en draai-/kiepramen, wat zorgt voor veel licht en extra ruimte.

Buitenruimte
De achtertuin is compact en knus, gelegen op het zuiden: perfect voor wie graag buiten zit, maar geen uren wil besteden aan tuinonderhoud. Via een steeg is er een handige achterom.

Bijzonderheden
• Ca. 112 m² woonoppervlak met vier slaapkamers;
• Nieuwe kunststof voor- en achterdeur en een grote moderne schuifpui;
• Zonnige, onderhoudsvriendelijke achtertuin op het zuiden met achterom;
• Veel verduurzamingsmogelijkheden met beschikbare subsidies;
• Ideale starterswoning met ruimte om mee te groeien.

Nieuwsgierig geworden? Deze woning laat zich graag van binnen zien en zou zomaar jouw eerste echte thuis kunnen worden.

+ Volledige omschrijving

De Waard Makelaars en Taxateurs

Telefonisch bereikbaar tot 17:00

Bel 0517393931

Documenten

Download media

Kenmerken

Overdracht

Vraagprijs € 250.000,- k.k.
Publicatiedatum 16 januari 2026
Status Onder bod
Aanvaarding In overleg

Oppervlakte en inhoud

Woonoppervlakte 112 m2
Inhoud 388 m3

Energie

Energieklasse C
Isolatievormen Muurisolatie, Dubbelglas, Hierdichting, HR glas
Soorten verwarming CV ketel
CV ketel type Atag
CV ketel bouwjaar 2015
CV ketel brandstof Gas
CV ketel eigendom Huur
Soorten warm water CV ketel

Garage

Soort garage Geen garage

Bouw

Soort woonhuis Eengezinswoning
Soort bouw Bestaande bouw
Bouwjaar 1965
Dak type Dwarskap

Bouw

Aantal kamers 6
Aantal slaapkamers 4
Aantal badkamers 1

Buitenruimte

Tuintypen Achtertuin, Voortuin
Kwaliteit Normaal
Totale oppervlakte 29 m2

Neem contact op

    Heeft u vragen of een bezichtiging inplannen?

    Bel voor advies