Skip to main content
Onder bod

Lytse Buorren 5 8851 ER Tzummarum

€ 275.000,- k.k.
  • 118 m2  woonopp.
  • 1 badkamer
  • Bouwjaar 1926
  • 5 kamers

Omschrijving

Vrijstaand wonen met ruimte, potentie én een royale garage van 55 m²!

Ben jij starter, jong gezin of een echte handige Harry die niet bang is om de handen uit de mouwen te steken? Dan is deze vrijstaande woning met maar liefst ca. 55 m² garage, een separate berging van ca. 38 m² en een diepe achtertuin van ca. 385 m² precies wat je zoekt. De woning is netjes bewoond, maar gedateerd en beperkt geïsoleerd — dé kans om alles in één keer goed aan te pakken en volledig naar eigen smaak én huidige duurzaamheidsnormen te moderniseren. Hier koop je geen dertien-in-een-dozijn woning, maar een plek met mogelijkheden.

Deze vrijstaande woning staat op een royaal perceel met een diepe achtertuin op het noordoosten van circa 385 m². Of je nu droomt van een grote veranda, een speelparadijs voor de kinderen, een moestuin of een uitbouw aan de achterzijde — de ruimte is er.

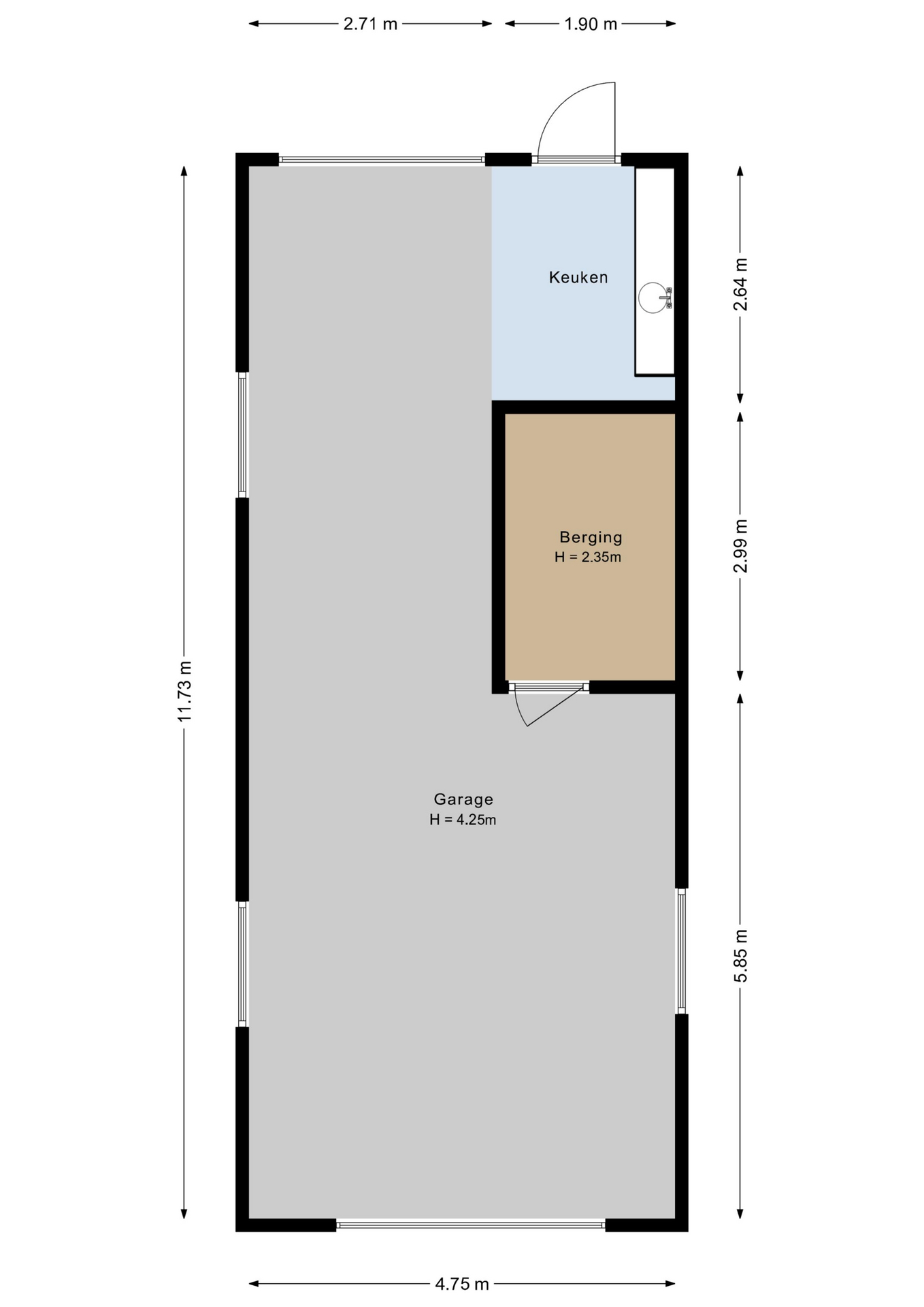
De vrijstaande garage van circa 55 m² is een absoluut pluspunt. Ideaal voor de hobbyist, ondernemer aan huis of voor het stallen van meerdere voertuigen. Daarnaast is er nog een vrijstaande berging van circa 38 m², wat zorgt voor uitzonderlijk veel opslag- en werkruimte.

De woning is grotendeels in originele staat en beschikt over beperkte isolatie. Dit vraagt om modernisering, maar biedt juist de mogelijkheid om de woning toekomstbestendig te maken met hedendaagse isolatievoorzieningen en installaties. Denk aan dak- en muurisolatie, HR++ beglazing en eventueel een (hybride) warmtepomp.

Indeling
Begane grond: Hal/entree met meterkast en trapopgang naar de verdieping, voorzien van praktische trapkast. De ruime living met open keuken aan de achterzijde (gezamenlijk ca. 48 m²) biedt volop indelingsmogelijkheden. Dankzij de open opzet creëer je hier eenvoudig een moderne woonkeuken met zicht op de tuin. De bijkeuken beschikt over een achterentree, CV-installatie en aansluitingen en afvoer voor de witgoedopstelling. Verder bevindt zich op de begane grond een toiletruimte met wandcloset en fonteintje en een badkamer met douche en wastafelmeubel.

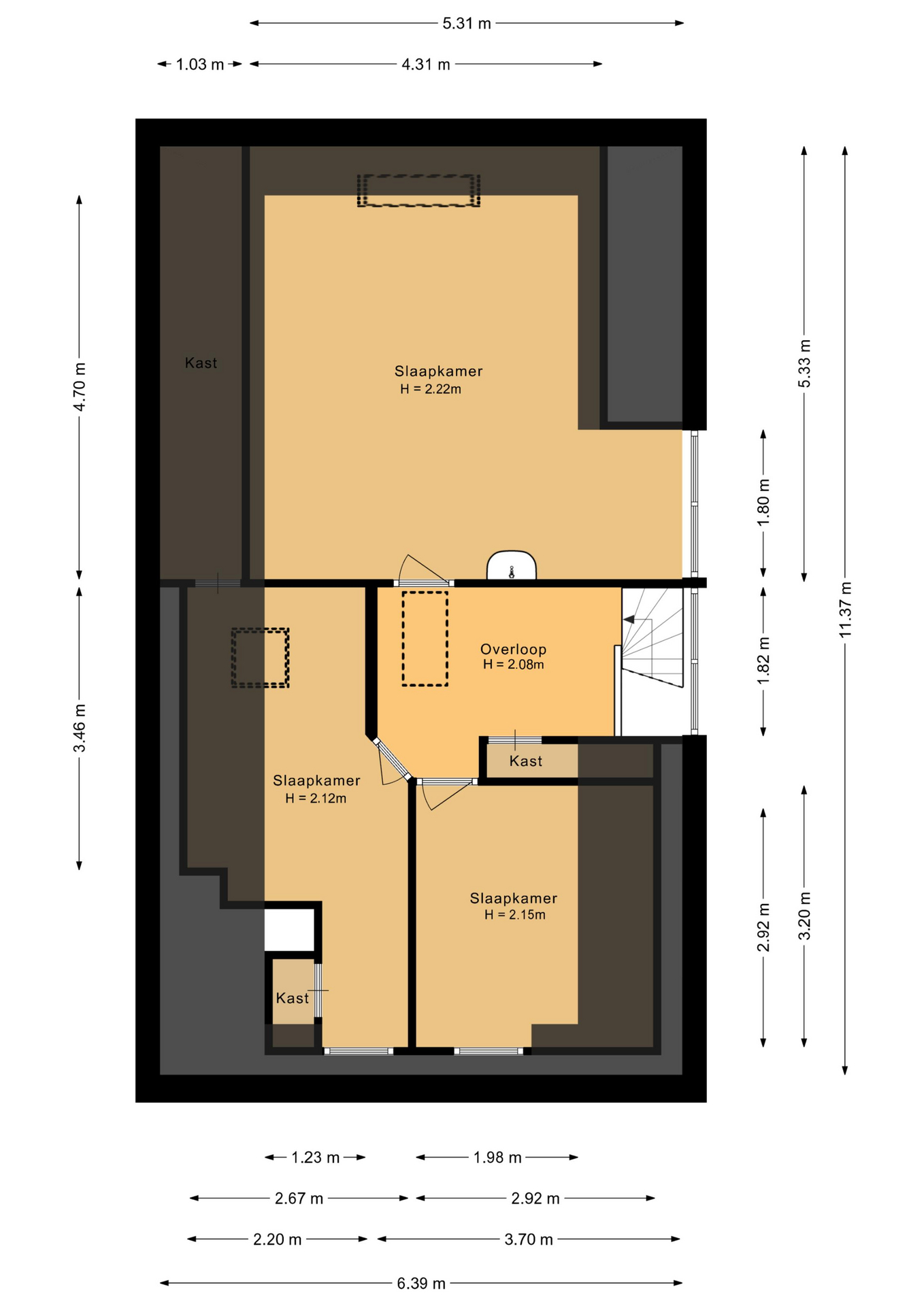
Verdieping: Overloop met vaste kast en luik naar de vliering. Slaapkamer I, slaapkamer II en slaapkamer III (ouderkamer) met wastafel. De verdieping biedt een praktische indeling, met mogelijkheden om ruimtes samen te voegen of anders in te delen indien gewenst.

Bijzonderheden:
• Vrijstaande woning met volop privacy;
• Vrijstaande garage van ca. 55 m² & separate berging van ca. 38 m²;
• Fraaie woonstand in rustige straat;
• Diepe achtertuin van ca. 385 m² op het noordoosten;
• Uitstekende mogelijkheid tot moderniseren en verduurzamen.

Ben je op zoek naar een vrijstaande woning met ruimte, karakter en vooral veel potentie? Dan is dit jouw kans om een huis volledig naar eigen smaak te transformeren. Met de royale garage, extra berging en diepe tuin heb je hier mogelijkheden die je zelden tegenkomt. Maak een afspraak voor een bezichtiging en ontdek zelf de ruimte en kansen die deze woning biedt. Neem contact op met ons kantoor — wij laten je deze woning graag persoonlijk zien!

+ Volledige omschrijving

De Waard Makelaars en Taxateurs

Telefonisch bereikbaar tot 17:00

Bel 0517393931

Documenten

Download media

Kenmerken

Overdracht

Vraagprijs € 275.000,- k.k.
Publicatiedatum 13 februari 2026
Status Onder bod
Aanvaarding In overleg

Oppervlakte en inhoud

Woonoppervlakte 118 m2
Inhoud 428 m3

Energie

Energieklasse F
Isolatievormen Muurisolatie, Grotendeels dubbelglas
Soorten verwarming CV ketel
CV ketel brandstof Gas
CV ketel eigendom Eigendom
Soorten warm water CV ketel

Garage

Soort garage Vrijstaand steen
Voorzieningen Elektra, Water
Oppervlakte 56 m2

Bouw

Soort woonhuis Eengezinswoning
Soort bouw Bestaande bouw
Bouwjaar 1926
Dak type Schilddak

Bouw

Aantal kamers 5
Aantal slaapkamers 3
Aantal badkamers 1

Buitenruimte

Tuintypen Tuin rondom
Kwaliteit Normaal
Totale oppervlakte 385 m2

Neem contact op

    Heeft u vragen of een bezichtiging inplannen?

    Bel voor advies