Skip to main content
Verkocht

Osingastate 53 8926 LL Leeuwarden

€ 349.500,- k.k.
  • 106 m2  woonopp.
  • 1 badkamer
  • 6 kamers
  • Tuin op Zuidoost

Omschrijving

Op een rustige woonstand, gelegen in een kindvriendelijke buurt staat deze nette en zeer onderhoudsvriendelijke hoekwoning met vier slaapkamers op 198m2 eigen grond. De achtertuin heeft een aangenaam formaat, is gesitueerd op het zuidoosten en voorzien van een vrijstaande stenen garage! Al met al is dit een heerlijke gezinswoning!

De woning is gebouwd in 1980 en sindsdien zijn zowel de spouw als de kruipruimte extra na geïsoleerd. Zowel de gevelbekleding en de kozijnen zijn volledig voorzien van kunststof, dat is makkelijk schilderen! Het glas in de kozijnen is HR++. Hier dus een minimaal warmteverlies. Op het dak liggen 10 zonnepanelen van 2017 van 300Wp per stuk. De verwarming geschiedt middels radiatoren, die zijn aangesloten op een moderne Intergas HR-combiketel van 2023, die in eigendom is. Alles bij elkaar resulteert dit in een keurig energielabel A. Daarnaast beschikt de woning over een waterontharder en elektrisch bedienbare zonwering aan de zij- en achterkant van de woning. Van alle gemakken voorzien!

INDELING
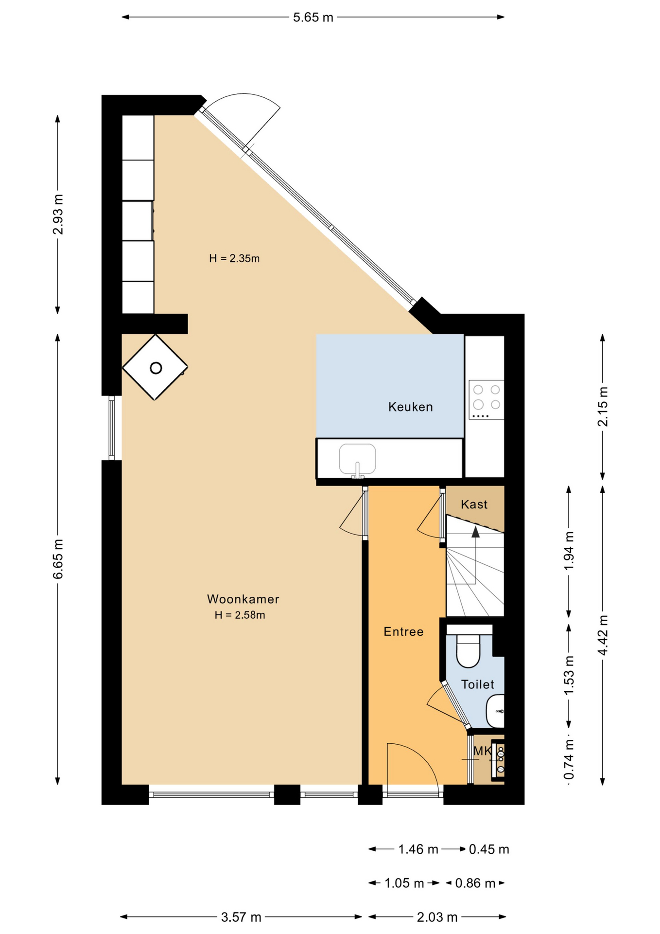
Parterre
Hal/entree met opgang, toiletruimte met wandcloset en fonteintje. Ruime living met een aangename lichtinval, open keuken van 2020 met moderne hoekopstelling voorzien van diverse inbouwapparatuur, waaronder een (stoom)oven, inductiekookplaat, wasemkap, vaatwasser, koelkast, vriezer en de Quoocker mag natuurlijk ook niet ontbreken. Vanuit zowel de woonkamer als de keuken geniet u van het zicht naar buiten op het omliggende groen. De achtertuin met achterom is eenvoudig te bereiken via zowel de loopdeur als de schuifpui.

Eerste verdieping
Overloop met de vaste trap naar de tweede verdieping. Slaapkamer I, slaapkamer II en slaapkamer III. Tenslotte de badkamer die in 2023 is vernieuwd, deze is voorzien van een inloopdouche, toilet en wastafel.

Tweede verdieping
Slaapkamer IV met aan weerskanten een knieschot voor extra berging. In deze ruimte bevindt zich tevens de aansluiting van de witgoedopstelling en een kastruimte met de CV-installatie.

Bijzonderheden:
• Rustige woonstand in met veel groen;
• Moderne keuken en badkamer;
• Vrijstaande stenen garage met elektrische sectionaaldeur;
• Volledig voorzien van kunststof, dus zeer onderhoudsvriendelijk;
• Goed geïsoleerd en voorzien van 10 zonnepanelen, energielabel A.

+ Volledige omschrijving

De Waard Makelaars en Taxateurs

Telefonisch bereikbaar tot 17:00

Bel 0517393931

Documenten

Download media

Kenmerken

Overdracht

Vraagprijs € 349.500,- k.k.
Publicatiedatum 26 september 2025
Status Verkocht
Aanvaarding In overleg

Oppervlakte en inhoud

Woonoppervlakte 106 m2
Inhoud 380 m3

Energie

Energieklasse A
Isolatievormen Dakisolatie, Muurisolatie, Vloerisolatie, Dubbelglas, Volledig geïsoleerd, Hierdichting, HR glas
Soorten verwarming CV ketel, Pelletkachel
CV ketel type Intergas
CV ketel bouwjaar 2023
CV ketel brandstof Gas
CV ketel eigendom Eigendom
Soorten warm water CV ketel

Garage

Soort garage Vrijstaand steen
Voorzieningen Elektra, Elektrische deur
Oppervlakte 21 m2

Bouw

Soort woonhuis Eengezinswoning
Soort bouw Bestaande bouw
Dak type Dwarskap

Bouw

Aantal kamers 6
Aantal slaapkamers 4
Aantal badkamers 1

Buitenruimte

Tuintypen Achtertuin, Voortuin, Zijtuin
Kwaliteit Normaal

Neem contact op

    Heeft u vragen of een bezichtiging inplannen?

    Bel voor advies