Skip to main content
Verkocht onder voorbehoud

Professor Schotanusstraat 29 8801 EJ Franeker

€ 225.000,- k.k.
  • 78 m2  woonopp.
  • 1 badkamer
  • Bouwjaar 1950
  • 6 kamers
  • Tuin op West

Omschrijving

Instap klaar starten in de Professorenbuurt

Op zoek naar een fijne tussenwoning dichtbij het centrum van Franeker? Dan is Professor Schotanusstraat 29 absoluut het bekijken waard. Deze gemoderniseerde jaren ’50-woning (energielabel B) beschikt over 78 m² woonoppervlakte, acht zonnepanelen (2024), een zonnige achtertuin op het westen én diverse recente verbeteringen. Een ideale plek voor starters of jonge gezinnen die comfortabel willen wonen met alle voorzieningen om de hoek.

De woning is de afgelopen jaren op belangrijke punten aangepakt. In 2024 is de spouw na geïsoleerd met EPS-parels en zijn op de begane grond bijna alle kozijnen vervangen door kunststof exemplaren met triple glas. Ook de voordeur is vernieuwd en aan de achterzijde is een fraaie schuifpui geplaatst, wat zorgt voor extra licht en een fijne verbinding met de tuin. Met de plaatsing van acht zonnepanelen (4 op oost, 4 op west) is tevens de meterkast vernieuwd (acht groepen en twee aardlekschakelaars). Verwarming vindt plaats via radiatoren aangesloten op een eigen Remeha Avanta CV-ketel van 2010. De zolder is niet geïsoleerd en er is geen vaste trap aanwezig, wat ruimte biedt om hier in de toekomst nog stappen te zetten.

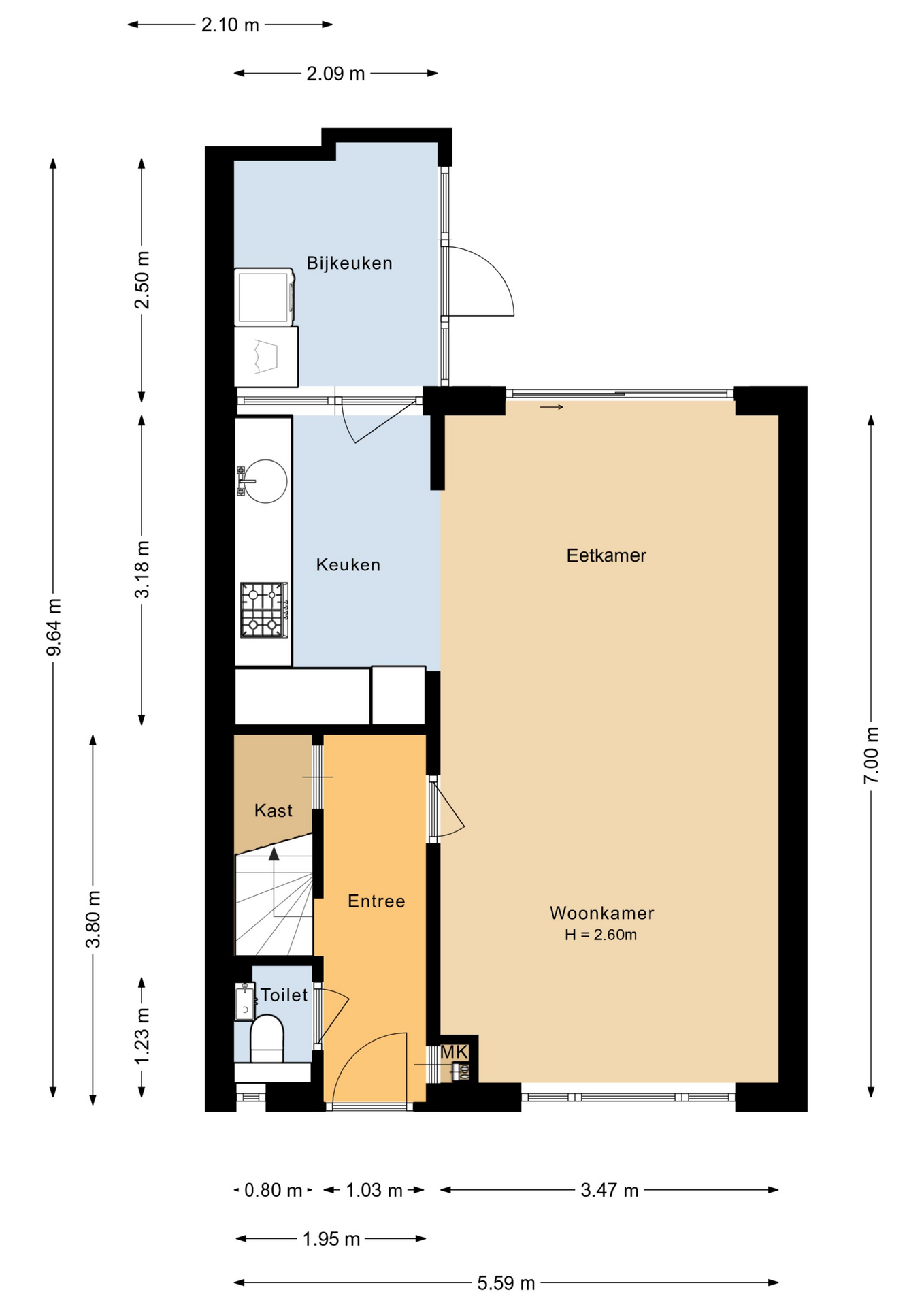
Indeling
Via de hal/entree met trapopgang en praktische trapkast bereik je de toiletruimte met wandcloset en fonteintje en de meterkast. De doorzonwoonkamer met eetgedeelte is licht en sfeervol. De keuken is in het verleden opengebroken en staat in halfopen verbinding met de woonkamer. Hier vind je een hoekopstelling met diverse inbouwapparatuur.
Achter de keuken bevindt zich de aangebouwde bijkeuken met witgoedaansluitingen en de achter entree naar de tuin.

Op de eerste verdieping zijn drie slaapkamers: een kleinere kamer, een ruime hoofdslaapkamer en een derde slaapkamer met toegang tot de bergzolder via een luik. De compacte badkamer is netjes uitgevoerd en voorzien van een douche en wastafel.

De achtertuin ligt op het westen, wat betekent dat je hier vanaf de middag tot in de avond van de zon kunt genieten. Via de gezamenlijke steeg is er een handige achterom. Daarnaast is er een aangebouwde stenen berging van circa 8 m² — ideaal voor fietsen en extra opslag. Parkeren kan in de straat of in de nabijgelegen openbare parkeerhaven.

Omgeving
De woning ligt in de geliefde Professorenbuurt, direct tegen het centrum van Franeker aan. Hier woon je rustig, maar met alles binnen handbereik. Het gezondheidscentrum, sportvelden en sporthal liggen op korte afstand. Ook het gezellige stadscentrum met supermarkten, HEMA, kledingwinkels en horeca is eenvoudig lopend of per fiets bereikbaar. Basisscholen, voortgezet onderwijs en kinderopvang zijn eveneens dichtbij. Alom een praktische en centrale woonlocatie voor wie comfortabel wil wonen met voorzieningen om de hoek.

Bijzonderheden:
• 78 m² woonoppervlakte op 143 m² eigen grond;
• Acht zonnepanelen (2024);
• Kunststof kozijnen met HR++ en deels triple glas (begane grond);
• Oplevering op korte termijn mogelijk;
• Gunstige ligging t.o.v. voorzieningen.

Zie jij jezelf hier al wonen? Neem dan contact op met ons kantoor voor een bezichtiging. Dit is zo’n woning waar je als starter direct een goede stap mee zet — we laten het je graag zien.

+ Volledige omschrijving

De Waard Makelaars en Taxateurs

Telefonisch bereikbaar tot 17:00

Bel 0517393931

Documenten

Download media

Kenmerken

Overdracht

Vraagprijs € 225.000,- k.k.
Publicatiedatum 4 maart 2026
Status Verkocht onder voorbehoud
Aanvaarding In overleg

Oppervlakte en inhoud

Woonoppervlakte 78 m2
Inhoud 313 m3

Energie

Energieklasse B
Isolatievormen Muurisolatie, Dubbelglas, Driedubbel glas
Soorten verwarming CV ketel
CV ketel type Remeha Avanta
CV ketel bouwjaar 2010
CV ketel brandstof Gas
CV ketel eigendom Eigendom
Soorten warm water CV ketel

Garage

Soort garage Geen garage

Bouw

Soort woonhuis Eengezinswoning
Soort bouw Bestaande bouw
Bouwjaar 1950
Dak type Dwarskap

Bouw

Aantal kamers 6
Aantal slaapkamers 3
Aantal badkamers 1

Buitenruimte

Tuintypen Achtertuin, Voortuin
Kwaliteit Normaal

Neem contact op

    Heeft u vragen of een bezichtiging inplannen?

    Bel voor advies