Skip to main content
Verkocht

Simke Kloostermanstrjitte 9 8802 ZT Franeker

€ 325.000,- k.k.
  • 132 m2  woonopp.
  • 1 badkamer
  • Bouwjaar 1975
  • 6 kamers
  • Tuin op West

Omschrijving

In een kindvriendelijke buurt in het levendige Franeker staat deze ruime hoekwoning met maar liefst vier slaapkamers, een eigen oprit, een ruime garage met zolder en een ruime, groene achtertuin met achterom en tuinhuis op het zonnige westen. Een ideale woning voor gezinnen en thuiswerkers die ruimte, comfort én een rustige leefomgeving zoeken.

De woning is gebouwd in 1975 en degelijk uitgevoerd met betonnen (verdiepings)vloeren. De kozijnen zijn grotendeels van hout en voorzien van dubbel glas en enkel glas met voorzetramen. Hoewel de vloer, spouw en kap sinds de bouw niet aanvullend zijn geïsoleerd, biedt de woning volop mogelijkheden om dit verder te optimaliseren. De verwarming vindt plaats via radiatoren, aangesloten op een eigen Intergas HR-combiketel uit 2015.

Indeling
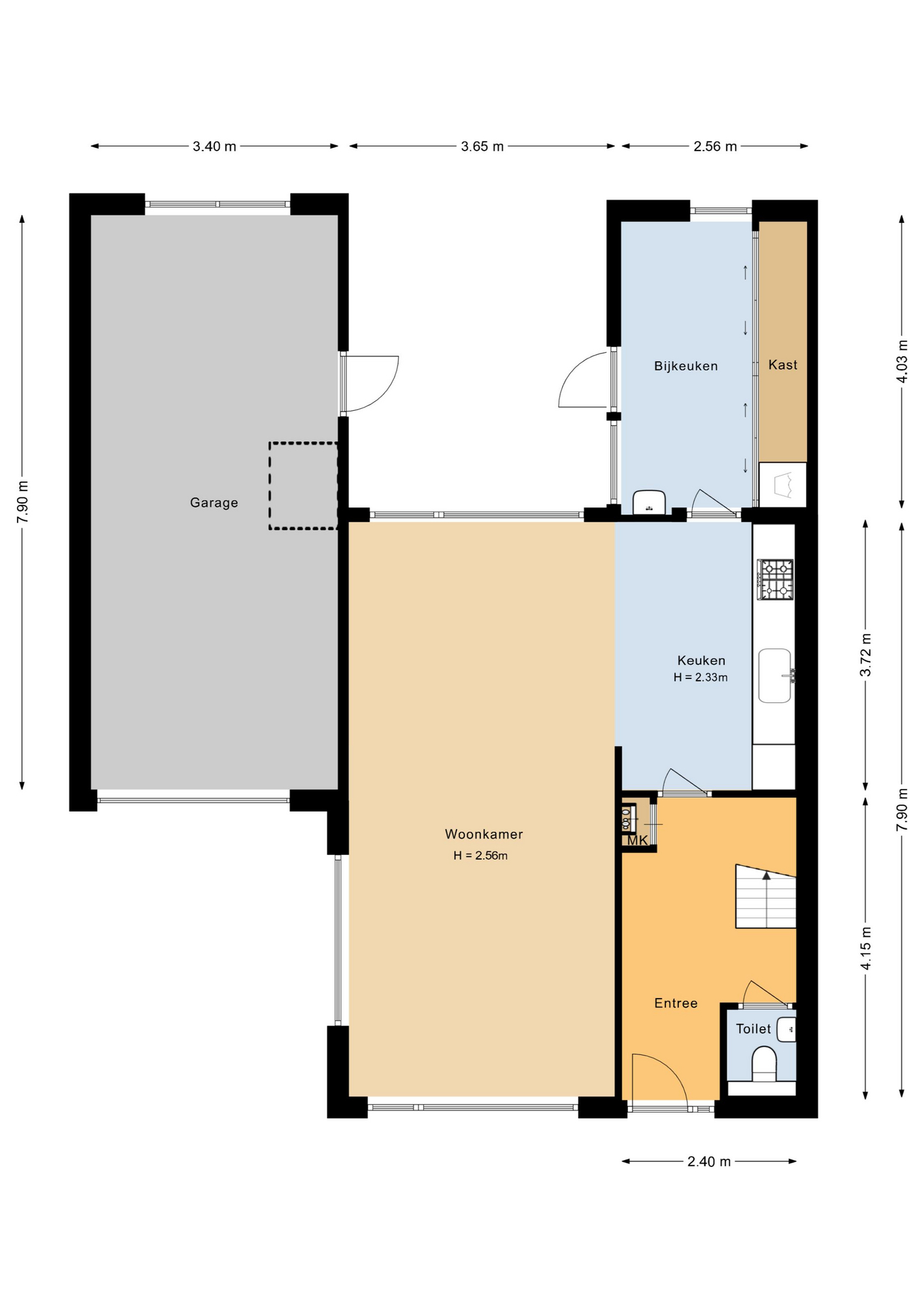
Begane grond
Entree met hal, meterkast, toilet en trapopgang naar de eerste verdieping. De lichte en ruime woonkamer biedt voldoende plek voor een gezellige zit- en eethoek. De open keuken beschikt over diverse inbouwapparaten. Aansluitend de bijkeuken met witgoedaansluitingen en ruimte voor een extra koel-/vriescombinatie en een boel kastruimte.

Eerste verdieping
Overloop met vaste trap naar de tweede verdieping. De moderne badkamer is voorzien van een wandcloset, wastafelmeubel en een vernieuwde douche. Er zijn drie comfortabele slaapkamers van ca. 12 m², 15 m² en 9 m².

Tweede verdieping
Grote overloop met toegang tot de berging waar zich de CV-installatie bevindt. Daarnaast een ruime vierde slaapkamer met dakraam en praktische bergruimte achter de knieschotten.

Bijzonderheden
• Royale hoekwoning met eigen oprit en fraaie tuin op het westen;
• Ruime garage van 27m² met zolder;
• Vier volwaardige slaapkamers;
• Kindvriendelijke ligging in een gezellige buurt;
• Gunstig gelegen t.o.v. voorzieningen en uitvalswegen.

+ Volledige omschrijving

De Waard Makelaars en Taxateurs

Telefonisch bereikbaar tot 17:00

Bel 0517393931

Documenten

Download media

Kenmerken

Overdracht

Vraagprijs € 325.000,- k.k.
Publicatiedatum 24 september 2025
Status Verkocht
Aanvaarding In overleg

Oppervlakte en inhoud

Woonoppervlakte 132 m2
Inhoud 613 m3

Energie

Energieklasse C
Isolatievormen Muurisolatie, Dubbelglas, Voorzetramen, HR glas
Soorten verwarming CV ketel
CV ketel type Intergas
CV ketel bouwjaar 2015
CV ketel eigendom Eigendom
Soorten warm water CV ketel

Garage

Soort garage Aangebouwd steen
Voorzieningen Verwarming, Elektra, Water, Vliering
Oppervlakte 27 m2

Bouw

Soort woonhuis Eengezinswoning
Soort bouw Bestaande bouw
Bouwjaar 1975
Dak type Dwarskap

Bouw

Aantal kamers 6
Aantal slaapkamers 4
Aantal badkamers 1

Buitenruimte

Tuintypen Achtertuin, Voortuin
Kwaliteit Normaal

Neem contact op

    Heeft u vragen of een bezichtiging inplannen?

    Bel voor advies