Skip to main content
Beschikbaar

Van Andel-Ripkestraat 51 8802 XB Franeker

€ 325.000,- k.k.
  • 134 m2  woonopp.
  • 1 badkamer
  • Bouwjaar 1973
  • 5 kamers
  • Tuin op Noord

Omschrijving

Ruimte, rust en potentie op fijne gezinslocatie

Aan de Van Andel-Ripkestraat 51 in Franeker staat deze ruime twee-onder-een-kapwoning met maar liefst 134 m² woonoppervlakte, een diepe achtertuin én een oprit voor vier auto’s. Een degelijk gebouwd huis (1973) met een sterke basis, energielabel C en volop mogelijkheden om het geheel naar eigen smaak te moderniseren. Tel daar het vrije uitzicht op groen aan de voorzijde bij op en je hebt een woning die klaar is voor een volgende stap. Benieuwd wat hier allemaal mogelijk is? Lees vooral verder.

De woning is vanuit de bouw geïsoleerd en in de afgelopen jaren verder verbeterd. Zo is de kruipruimte geïsoleerd met isolatiechips en is de spouw nageïsoleerd met EPS-parels. Verwarming vindt plaats via radiatoren aangesloten op een Nefit HR-combiketel uit 2004 (eigendom). Met energielabel C is er een nette uitgangspositie, maar ook zeker ruimte om verder te verduurzamen — denk aan zonnepanelen of aanvullende isolatiemaatregelen van het dak. De basis is goed. En dat is bij een woning als deze misschien wel het belangrijkste.

Indeling
Via de hal/entree met meterkast, toilet en trapopgang bereiken we de L-vormige woonkamer. Een fijne doorzonkamer met veel lichtinval en zicht op groen aan de voorzijde. Aansluitend bevindt zich de gesloten keuken, met daarachter de praktische bijkeuken waar ook de witgoedopstelling is gesitueerd en de achterdeur naar de tuin.
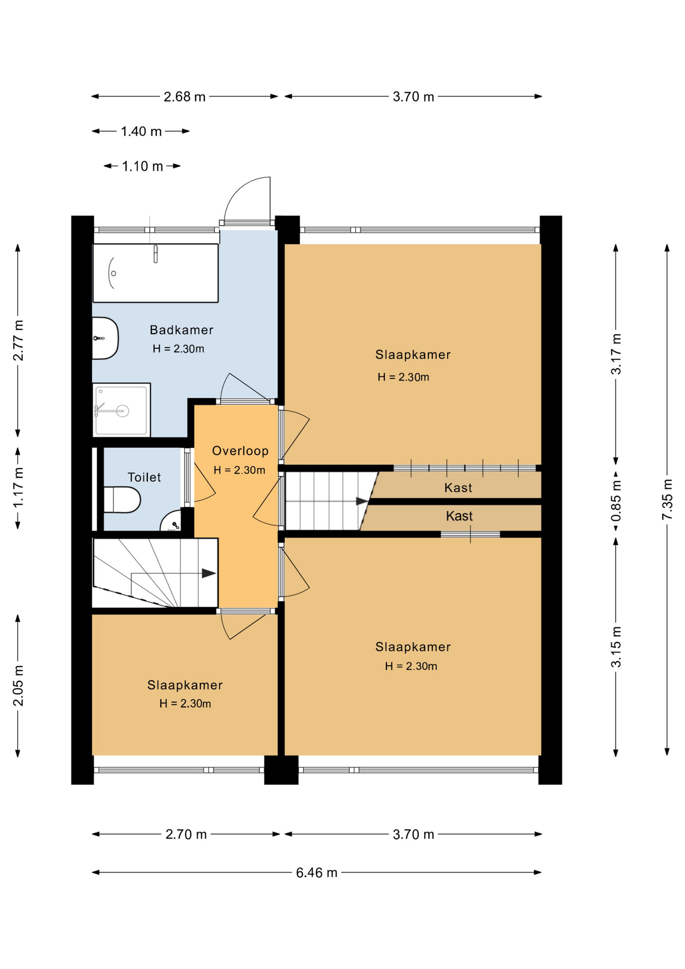
Op de eerste verdieping zijn drie slaapkamers, een separaat tweede toilet en de badkamer met ligbad, douche en wastafel. Via een vaste trap is de grote zolder bereikbaar. Deze ruimte is momenteel niet verder ingedeeld, maar biedt volop mogelijkheden voor bijvoorbeeld een extra slaapkamer, werkruimte of hobbykamer.

Buiten beschikt de woning over een lange eigen oprit, geschikt voor maar liefst vier voertuigen. Aan het einde daarvan staat een vrijstaande stenen garage (ca. 5,80 x 3,35 meter) met plat dak en elektrische roldeur. De achtertuin is circa 14 meter diep en 10 meter breed — een heerlijke plek voor spelende kinderen, een moestuin of een fraai terras.

Omgeving
De woning ligt in een kindvriendelijke en populaire woonwijk in Franeker. Op loopafstand bevindt zich een groot speelplein. Supermarkten zoals Albert Heijn en Lidl zijn eenvoudig per fiets of lopend bereikbaar, net als het gezellige stadscentrum. Qua bereikbaarheid zit je hier eveneens goed: busverbindingen richting Dronrijp, Leeuwarden en Harlingen zijn aanwezig en ook het treinstation van Franeker biedt een directe verbinding naar Harlingen en Leeuwarden. Een fijne plek voor jonge gezinnen die ruimte zoeken, maar ook voorzieningen dichtbij willen hebben.

Bijzonderheden
• 134 m² woonoppervlakte op 290 m² eigen grond;
• Drie slaapkamers + ruime zolder met mogelijkheden;
• Diepe achtertuin en oprit voor vier auto’s;
• Vrijstaande stenen garage met elektrische deur;
• ‘As is, where is’ clausule van toepassing.

Zie jij de potentie van deze woning en wil je hier jouw thuis van maken? Neem dan contact op met ons kantoor voor een bezichtiging. We laten je de mogelijkheden graag zelf ervaren.

+ Volledige omschrijving

De Waard Makelaars en Taxateurs

Telefonisch bereikbaar tot 17:00

Bel 0517393931

Documenten

Download media

Kenmerken

Overdracht

Vraagprijs € 325.000,- k.k.
Publicatiedatum 20 februari 2026
Status Beschikbaar
Aanvaarding In overleg

Oppervlakte en inhoud

Woonoppervlakte 134 m2
Inhoud 473 m3

Energie

Energieklasse C
Isolatievormen Muurisolatie, Vloerisolatie, Gedeeltelijk dubbelglas, Hierdichting, HR glas
Soorten verwarming CV ketel
CV ketel type Nefit Ecoline HRC
CV ketel bouwjaar 2004
CV ketel eigendom Eigendom
Soorten warm water CV ketel

Garage

Soort garage Vrijstaand steen
Voorzieningen Elektra, Elektrische deur
Oppervlakte 19 m2

Bouw

Soort woonhuis Eengezinswoning
Soort bouw Bestaande bouw
Bouwjaar 1973
Dak type Dwarskap

Bouw

Aantal kamers 5
Aantal slaapkamers 3
Aantal badkamers 1

Buitenruimte

Tuintypen Achtertuin, Voortuin, Zijtuin
Kwaliteit Normaal
Totale oppervlakte 290 m2

Neem contact op

    Heeft u vragen of een bezichtiging inplannen?

    Bel voor advies