Skip to main content
Beschikbaar

Voorstraat 58 8801 LE Franeker

€ 1.700,- p/m.

Omschrijving

In centrum van Franeker gelegen moderne kantoorruimte op een uitstekende locatie met veel parkeerruimte direct voor de deur en een diepe achtertuin met achterom. Het pand is tevens zeer geschikt als winkel/praktijkruimte.

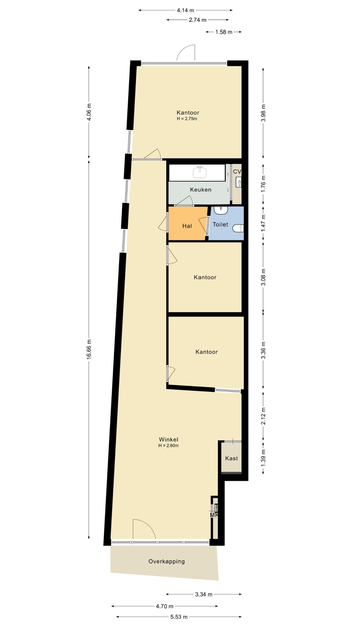
Indeling: balie/receptie, inloopkast/garderobe, trapkast met patchkast, open werkplekken, kantoor I (ca. 10 m2), kantoor II (ca. 9m3) tussen hal met toilet en keuken (ca. 6 m2), ruime spreekkamer/kantoor (ca. 20 m2) met deur naar de tuin.

Het geheel wordt turn-key opgeleverd en is ca. 103 m2 V.V.O. De achtertuin is ca. 62 m2 en biedt nog uitbreidingsmogelijkheden voor het pand.
In 2006 is het pand geheel gemoderniseerd. Het is voorzien van dubbele beglazing, verwarming middels vloerverwarming en climatcontrol middels een splitairco met een binnenunit in ieder kantoor. Tevens is er een alarminstallatie aanwezig.

Toegestaan is: detailhandel, ambachtelijke bedrijven, dienstverlenende bedrijven en maatschappelijke voorzieningen. In de nabije omgeving bevinden zich diverse winkels als de Wijnwinkel Souverein, Expert, Scapino, Bakkerij Siesling en de Hema.

Metrage: 103 m2
Pui breedte: 6,0 m1
Plafond: ca. 2,8 m1
Uitbreidingsmogelijkheden: Ja
Huurvoorwaarde: model ROZ (7:290 BW)
Huurperiode: per 5 jaar
Huurbetaling: per maand vooraf
Indexering: Ja, CPI
Bankgarantie: Ja, ter grootte van 3 maanden huur
Aanvaarding: in overleg, is per direct beschikbaar
BTW: Ja

+ Volledige omschrijving

De Waard Makelaars en Taxateurs

Telefonisch bereikbaar tot 17:00

Bel 0517393931

Documenten

Download media

Kenmerken

Overdracht

Vraagprijs € 1.700,- p/m.
Aangeboden sinds 20 mei 2025
Status Beschikbaar
BTW belast Nee

Indeling

Soort object Kantoorruimte
Kantoorruimte 103 m2

Energie

Energieklasse C
Energie einddatum 2031-10-04

Bouwvorm

Bouwvorm Bestaande bouw

Diversen

Woonruimte Geen woonruimte aanwezig
Onderhoud binnen Goed tot uitstekend
Onderhoud buiten Goed tot uitstekend

Parkeergelegenheid

Parkeerpl. overdekt 0

Neem contact op

    Heeft u vragen of een bezichtiging inplannen?

    Bel voor advies