Skip to main content
Beschikbaar

Marconistraat 9 8861 NG Harlingen

€ 485.000,- k.k.

Omschrijving

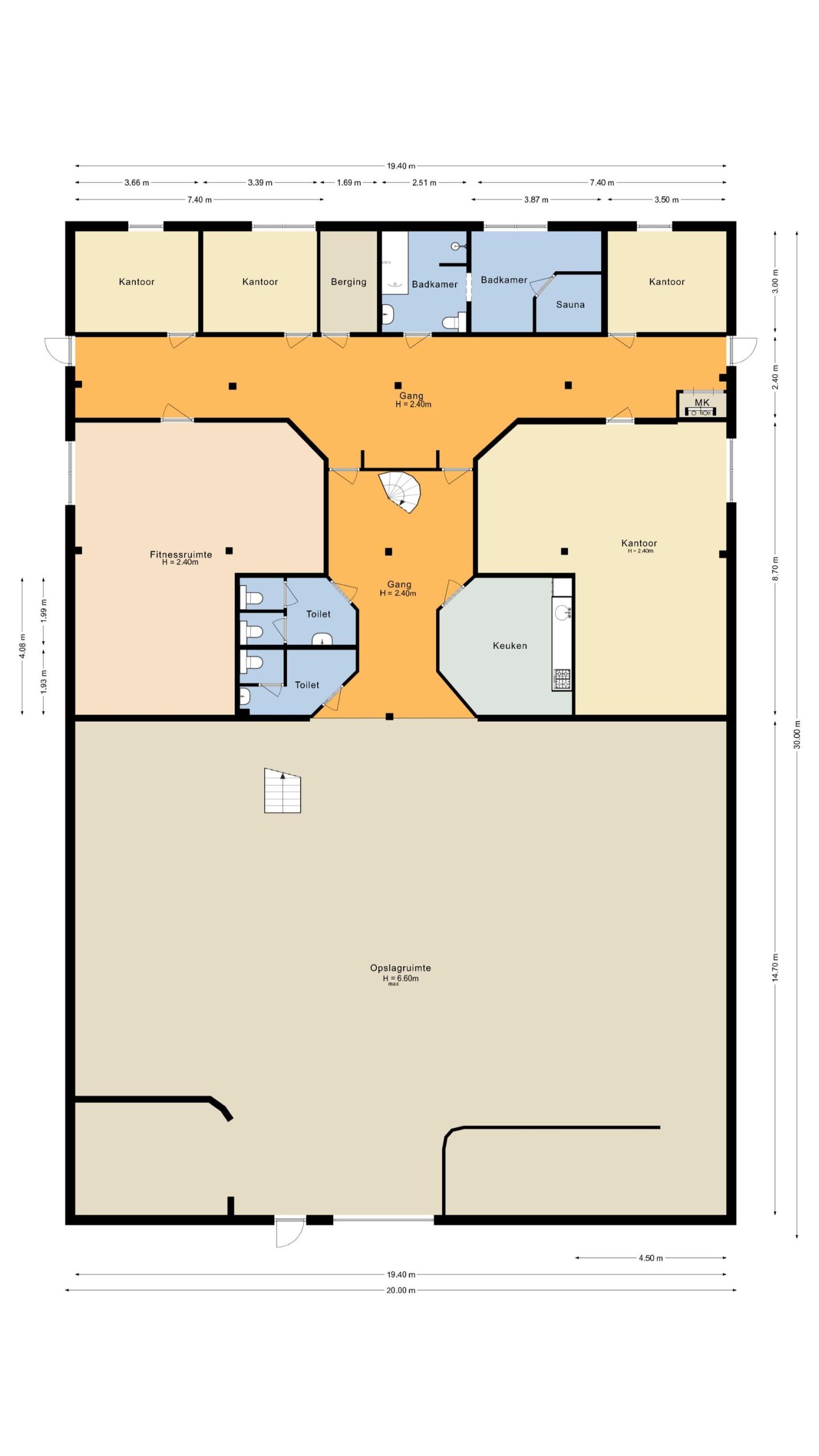
Op het bedrijventerrein Oostpoort wordt hierbij te koop aangeboden een in 2001 gebouwde, volledig middels sandwichpanelen geïsoleerde bedrijfsloods van ca. 580m2, met een verdiepingsvloer van ca. 275m2 gelegen op 1.655 m2 eigen grond.
De unit heeft een buitenmaatse afmeting van ca. 30m1 x 20m1 met een nokhoogte van ca. 6,60m1 en is aan de zuid, west en noord zijde omheind, langs de oostzijde ligt een sloot.
Er is een stroomaansluiting van 3 x 25 ampère.

De begane grond is als volgt ingedeeld:
Loods ca. 285m2 met elektrische sectionaaldeur van 3m1 x 3m1, toiletruimte, keuken, twee maal een kantoorruimte van ca 50m2 en drie kamers van respectievelijk 10m2 en een badkamer.

Verdieping: balkon ca. 35m2, kantoor/kantineruimte ca. 44m2 met keukenopstelling, opslagruimte of potentieel kantoorruimte ca. 142m2 ,technische ruimte, berging en dubbele toiletruimte.

Bestemmingsplan Harlingen – Oostpoort
Bestemmingsomschrijving 4. 1.

De voor ‘Bedrijventerrein’ aangewezen gronden zijn bestemd voor:

a. bedrijfsgebouwen ten behoeve van bedrijven die zijn genoemd in bijlage 1 onder de categorieën 1, 2, 3.1, 3.2, 4.1 en 4.2, met uitzondering van:

1.risicovolle inrichtingen en vuurwerkbedrijven;
2.slachterijen en overige vleesverwerking, pluimveeslachterijen;
3.slachterijen en overige vleesverwerking, bewerkingsinrichting van darmen en vleesafval;
4.recyclingbedrijven voor afgewerkte olie;
5.aardolieproductenfabrieken n.e.g.;
6.anorganische chemische grondstoffenfabrieken: niet vallend onder “post-Seveso-richtlijn”;
7.organische chemische grondstoffenfabrieken: niet vallend onder “post-Seveso-richtlijn”;
8.organische chemische grondstoffenfabrieken: methanolfabrieken p.c. = 100.000t/j;
10.vetzuren en alkanolenfabrieken (niet synthetisch): p.c. <50.000 t/j;
11.rubberbandenfabrieken;
12.bitumineuze materialenfabrieken: p.c. < 100 t/u;
13.minerale productenfabrieken n.e.g.: asfaltcentrales p.c. = 100 t/u;
15.windmolens;
16.afvalverwerkingsbedrijven: kabelbranderijen;
17.afvalverwerkingsbedrijven: pathogeen afvalverbranding (voor ziekenhuizen);
18.afvalverwerkingsbedrijven: afvalverbrandingsinrichtingen, thermisch vermogen >75 MW;
19.vuilstortplaatsen;

Vraagprijs € 485.000,= kosten koper.
Oplevering in overleg.

+ Volledige omschrijving

De Waard Makelaars en Taxateurs

Telefonisch bereikbaar tot 17:00

Bel 0517393931

Documenten

Download media

Kenmerken

Overdracht

Vraagprijs € 485.000,- k.k.
Aangeboden sinds 5 februari 2025
Status Beschikbaar

Indeling

Soort object Bedrijfsruimte
Perceel 1.655 m2
Bedrijfsruimte bedrijfshal 285 m2

Bouwvorm

Bouwvorm Bestaande bouw

Diversen

Woonruimte Geen woonruimte aanwezig
Onderhoud binnen Redelijk tot goed
Onderhoud buiten Goed

Neem contact op

    Heeft u vragen of een bezichtiging inplannen?

    Bel voor advies